|
Maße
|
Beschreibung
|
Preis
|
|
|
T30/T90 Panik-Einsteckschloss Geteilte Nuss gegen Aufpreis! |
Preise siehe Shop |
||
|
T30/T90 Panik-Einsteckschloss
Falle mittig, 2 kleine Riegel oberhalb und unterhalb der FalleDornmaß 65 mm Entfernung 72 mm Stulp 24 x 235 mm rund Nuss 9 mm DIN-Links oder Rechts verwendbar Lieferbar mit einfacher Nuss und Wechsel, wenn außen kein Drücker montiert ist. Lieferbar mit geteilter Nuss, wenn außen und innen ein Drücker montiert ist Geteilte Nuss gegen Aufpreis! Hersteller: BMH |
Preise siehe Shop |
||
|
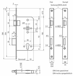
Zimmertür-Panik-Einsteckschloss
Dornmaß 55 mm, Entfernung 72 mm, Nuss 9 mm StulpMaße 20 x 235 mm rund oder 24 x235 mm rund, DIN-Links oder Rechts angeben, mit einfacher oder geteilter Nuss lieferbar Geteilte Nuss gegen Aufpreis! Als Sonderanfertigung auch für nach innen öffnende Fluchttüren lieferbar Gefahrenseite ist dann die Bänderseite
|
Preise siehe Shop |
||
|
Haustür-Panik-Einsteckschloss
Dornmaß 65 mm, Entfernung 92 mm, Nuss 9 mm StulpMaße 20 x 280 mm käntig, DIN-Links oder DIN-Rechts angeben, mit einfacher oder geteilter Nuss lieferbar Geteilte Nuss gegen Aufpreis! Als Sonderanfertigung auch für nach innen öffnende Fluchttüren lieferbar Gefahrenseite ist dann die Bänderseite |
Preise siehe Shop |
||
|
Panikschloss für Rohrrahmentüren bzw. Profiltüren
lieferbar ab Dornmaß 30 mm, in den Maßen 35, 40 und 45 mm Entfernung 92 mm, Nuss 9 mm Stulpausführung mit flachem Stulp oder U-Stulp lieferbar Ausführung in einfacher Nuss mit Wechselfunktion oder geteilter Nuss für beidseitigen Drücker, außen und innenGeteilte Nuss mit Aufpreis lieferbar
|
Preise siehe Shop |
Panikschlösser können Menschenleben retten! Was Sie unbedingt beim Einbau von Panikschlössern beachten sollten: Da wo ein Panikschloss bereits montiert war, muss nach einem Defekt auch wieder ein Panikschloss montiert werden. Bekommen Sie von der Bauaufsicht die Auflage, ein Panikschloss zu montieren, dann tun Sie dies auch. Versuchen Sie nicht ein Panikschloss zu reparieren, dies darf nicht einmal der Fachmann. Herstellerseitig sind die Schlosskästen der Panikschlösser versiegelt. Beschädigen Sie die Versiegelung, haftet der Hersteller nicht mehr für die einwandfreie Funktion des Panikschlosses. Führen Sie nach der Montage eine Funktionsprüfung durch. Schließen Sie die Tür ab und betätigen Sie den Türdrücker (Türklinke) von innen. Die Tür muss sich leicht innerhalb einer Sekunde öffnen lassen. Wiederholen Sie diese Prüfung halbjährlich.









































